Athens, GA 30606

Mortgage Calculator
Monthly Payment (Est.)
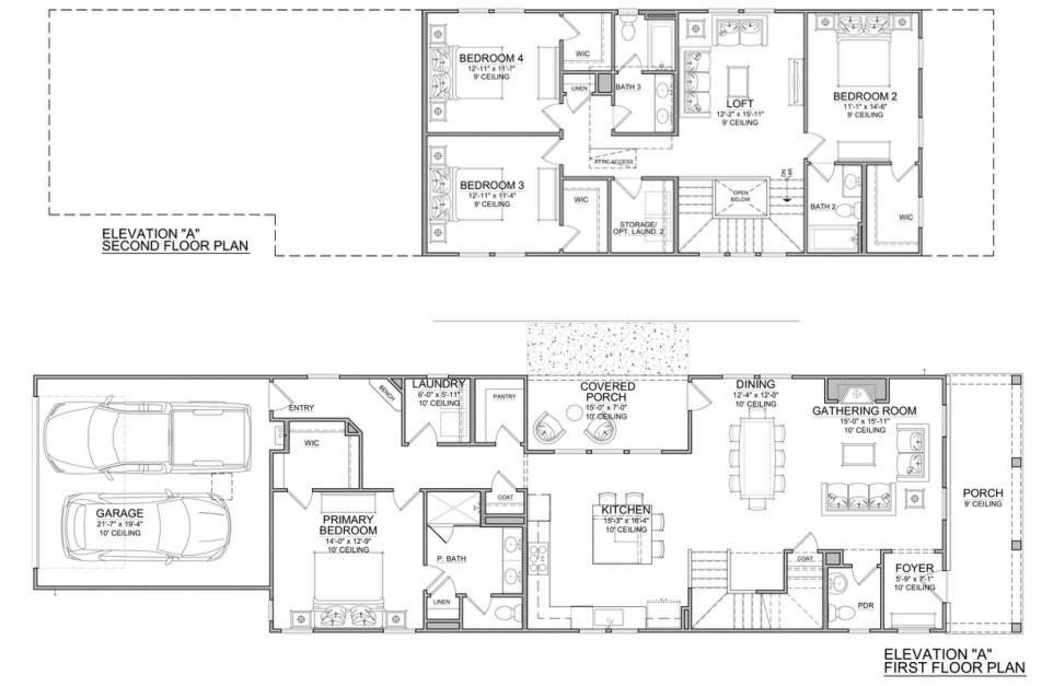
$2,411Welcome to Summerville! A charming neighborhood of southern style water color homes. Beautifully designed with modern finishes. Spacious and open for today's lifestyle. The first floor is an entertainers dream featuring 10' ceilings and plenty of natural light. Chef's kitchen with oversized island, double ovens and gas cooktop with vented hood. Family room with fireplace and dedicated breakfast area leading to the covered patio. Primary bedroom with spa inspired bath and walk in closet located on the main level. Laundry conveniently located off of the garage entrance. The second floor features 9'ceilings and open loft along with 3 secondary bedrooms and ample closet space. Optional laundry available upstairs or use the space for additional storage. Located minutes from downtown Athens and the UGA campus, shopping and dining with easy access to major roads. Offering a $10k incentive with one of our preferred lenders. We invite you to tour today! Home is under construction / estimated closing May - June 2026.
| 4 weeks ago | Listing first seen on site | |
| 4 weeks ago | Listing updated with changes from the MLS® |
Listings identified with the FMLS IDX logo come from FMLS and are held by brokerage firms other than the owner of this website and the listing brokerage is identified in any listing details. Information is deemed reliable but is not guaranteed. If you believe any FMLS listing contains material that infringes your copyrighted work, please click here to review our DMCA policy and learn how to submit a takedown request.
© 2017-2026 First Multiple Listing Service, Inc.

